6 locali in vendita

Riccò Del Golfo Di Spezia, Via Graveglia - Graveglia
€ 190.000
6 locali 6 locali
145 Mq 145 Mq
2 bagni 2 bagni

6 locali in vendita

Riccò Del Golfo Di Spezia, Via Graveglia - Graveglia

Descrizione annuncio

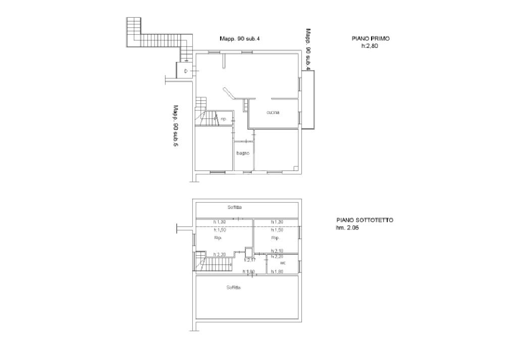
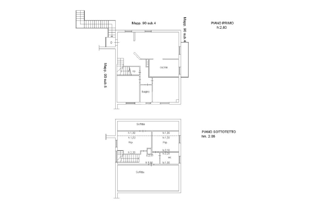
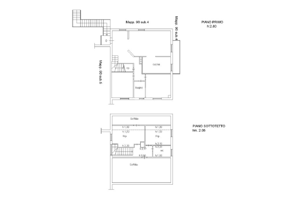
Nella tranquilla località di Val Graveglia, nel comune di Riccò del Golfo di Spezia, proponiamo in vendita ampio appartamento su due livelli di 145 mq, situato al primo piano di una quadrifamiliare, con posto auto esterno privato.

L'immobile offre una distribuzione spaziosa e funzionale, ideale per chi cerca una soluzione abitativa comoda e ben organizzata, oltre che un' ottima luminosità.

Internamente l'immobile è così composto: al primo piano l'ingresso si apre su un luminoso e spazioso soggiorno con camino, una cucina abitabile con accesso al balcone, due camere da letto matrimoniali, un ripostiglio e un bagno con finestra e box doccia. Attraverso una comoda scala interna si accede al piano superiore mansardato, dove troviamo ulteriori due spaziosi locali, un secondo bagno con finestra e box doccia e un sottotetto sfruttabile.

Il riscaldamento è autonomo e non ci sono spese condominiali. Infissi a doppio vetro e portone blindato.

L'immobile garantisce un contesto residenziale sereno, perfetto per chi desidera vivere lontano dal caos cittadino, ma con la comodità di avere i principali servizi a portata di mano.

Ottima opportunità da non perdere! Per maggiori informazioni o per fissare una visita, contattaci!

Mostra tutto

Nelle vicinanze

Ricariche auto elettriche Ricariche auto elettriche
Graveglia | EnelX
700 m
Municipio di Riccò del Golfo di Spezia | EnelX
1,5 Km
Ospedali Ospedali
Ospedali
1,6 Km
Ristoranti Ristoranti
Claudia
640 m
Ristoranti
890 m
Ristorante da Pietro
980 m
Locanda del Giglio
1,1 Km
Mostra tutto

Caratteristiche

Rif.:
61128318
Piano:
1 di 1 (Piano basso)
Posti auto:
1
Balconi:
1
Camere da letto:
2
Arredamento:
Parziale
Mostra tutto
Prezzo Prezzo
€ 190.000
Rata mutuo Rata mutuo
€ 896 / mese
Spese annue Spese annue
€ 0
Proponi il tuo prezzoProponi il tuo prezzo
Immobile valutato con T·Valuta

Classe Energetica

G
G
G
G
G
G
G
G
G
EP globale non rinnovabile:
166.42 kW h/m² anno
EP invernale del fabbricato:
EP estiva del fabbricato:
Anno di costruzione:
1970
Riscaldamento:
Autonomo
Tipo impianto:
A radiatori
Tipo alimentazione:
Metano

Ti interessa visionare l'immobile?

Fissa un appuntamento  Fissa un appuntamento

Richiedi informazioni

Clicca su Leggi per aprire l'informativa
* Questi campi sono obbligatori

Calcola il tuo mutuo

Semplice e senza impegno
Anticipo

( % )
Mutuo

( % )

pochi semplici passi

inserisci i tuoi dati
Questionario completato
Grazie per aver richiesto un appuntamento senza impegno con un nostro Consulente del Credito e Assicurativo.

Hai inserito correttamente tutti i dati necessari e a breve riceverai una e-mail con un link da convalidare per inviare i tuoi dati.
Affiliato
Studio Monfalcone Srl
Via Monfalcone, 286 19123 La Spezia (SP)

Il nostro staff


  • Giovanni Micocci
    Affiliato
Via Monfalcone, 286 19123 La Spezia (SP)
Zona: La Spezia - Rebocco - Pegazzano - Fabiano
Mostra su mappa
Orari: dal lunedì al sabato: mattino 9:00 - 12:30 pomeriggio 15:00 -19:00 sabato 18:00
Affiliato
Studio Monfalcone Srl
Via Monfalcone, 286 19123 La Spezia (SP)

2025 Tecnocasa Franchising S.p.A. - P. IVA 08365160152 - Via Monte Bianco 60/A 20089 Rozzano (MI). Ogni agenzia ha un proprio titolare ed è autonoma. Privacy policy | Policy utilizzo | Cookie policy