Quadrilocale in vendita

La Spezia, Via di Murlo - Pegazzano
€ 178.000
4 locali 4 locali
81 Mq 81 Mq
1 bagno 1 bagno

Quadrilocale in vendita

La Spezia, Via di Murlo - Pegazzano

Descrizione annuncio

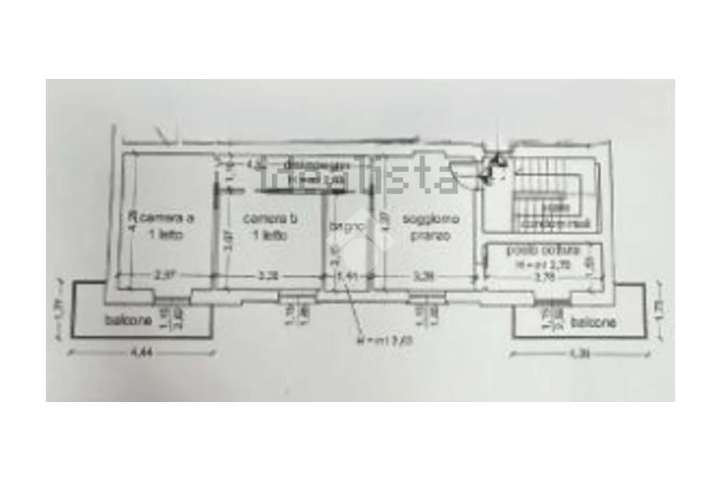
Costa di Murlo - In zona tranquilla e defilata dal traffico, proponiamo in vendita appartamento ristrutturato di quattro locali al secondo piano senza ascensore, in condominio in ordine nelle sue opere.

L'immobile è caratterizzato da spazi ben distribuiti, ambienti luminosi e da una meravigliosa vista mare dai balconi. Internamente la zona giorno si apre su un luminoso e accogliente soggiorno e da un angolo cottura con accesso al balcone vista mare. La zona notte si compone invece di due camere da letto, di cui una con accesso ad un secondo balcone con vista panoramica e da da un bagno cieco con box doccia.

L'immobile si presenta in ottime condizioni, grazie alla ristrutturazione effettuata circa 10 anni fa ed è dotato di ottime rifiniture: portone blindato, pompe di calore, infissi a doppio vetro, porte interne in legno pregiato e pavimenti in laminato. Il riscaldamento è autonomo e le spese condominiali sono basse.

Ulteriori punti di forza dell'immobile sono la splendida vista mare, unita a un'ottima esposizione, che garantisce luce naturale durante tutta la giornata.

Ottima opportunità da non perdere! Per maggiori informazioni o per fissare una visita, contattaci!

Mostra tutto

Nelle vicinanze

Trasporto pubblico Trasporto pubblico
stazione di La Spezia Centrale
stazione di La Spezia Centrale
1,2 Km
Pegazzano N. Sauro
Pegazzano N. Sauro
320 m
Pegazzano Baracchini
Pegazzano Baracchini
360 m
Terminal Traghetti di La Spezia
2,1 Km
Terminal Crociere di La Spezia
2,4 Km
Ricariche auto elettriche Ricariche auto elettriche
Europa Park
2,3 Km
ENERCOOP CC Le Terrazze by Duferco
2,7 Km
Le Terrazze
2,9 Km
Scuole Scuole
Complesso Scolastico 2 Giugno
670 m
Liceo Scientifico Antonio Pacinotti
740 m
Istituto Paritario Madri Pie Franzoniane
850 m
Polo Universitario della Spezia
930 m
Scuole
1,1 Km
Farmacia Farmacia
Farmacia Campodonico
410 m
Farmacia dell'Arsenale
730 m
Farmacia
1,0 Km
Farmacia Internazionale
1,2 Km
Farmacia della Stazione
1,3 Km
Ospedali Ospedali
Pronto Soccorso di La Spezia
2,5 Km
Ospedale Civile Sant'Andrea
2,6 Km
Ospedali
2,8 Km
Supermercati Supermercati
Di Meglio Supermercato
420 m
Il Faro
880 m
Coop "Il Faro"
910 m
in Coop
1,2 Km
Express Via Fiume
1,3 Km
Negozi Negozi
Panificio Santucci
490 m
Il Giardino di Daniele
640 m
Rizoli
1,1 Km
DORO Supercati
1,2 Km
Negozi
1,2 Km
Bar Bar
Happy Bar
650 m
Bar
870 m
Pasticceria Bezzi
1,2 Km
Tabacchi
1,4 Km
Biolino
1,5 Km
Ristoranti Ristoranti
Moccia
310 m
Pizzeria Capolinea
480 m
Trenta Denari
490 m
Fuorionda
720 m
La Casina Rossa
770 m
Mostra tutto

Caratteristiche

Rif.:
61197239
Piano:
2 di 2 (Piano medio)
Balconi:
2
Camere da letto:
2
Arredamento:
Parziale
Condizionamento:
Autonomo
Mostra tutto
Prezzo Prezzo
€ 178.000
Rata mutuo Rata mutuo
€ 846 / mese
Spese annue Spese annue
€ 400
Proponi il tuo prezzoProponi il tuo prezzo

Classe Energetica

G
G
G
G
G
G
G
G
G
Anno di costruzione:
1940
Riscaldamento:
Autonomo
Tipo impianto:
A radiatori
Tipo alimentazione:
Metano

Ti interessa visionare l'immobile?

Fissa un appuntamento  Fissa un appuntamento

Richiedi informazioni

Clicca su Leggi per aprire l'informativa
* Questi campi sono obbligatori

Calcola il tuo mutuo

Semplice e senza impegno
Anticipo

( % )
Mutuo

( % )

pochi semplici passi

inserisci i tuoi dati
Questionario completato
Grazie per aver richiesto un appuntamento senza impegno con un nostro Consulente del Credito e Assicurativo.

Hai inserito correttamente tutti i dati necessari e a breve riceverai una e-mail con un link da convalidare per inviare i tuoi dati.
Affiliato
Studio Monfalcone Srl
Via Monfalcone, 286 19123 La Spezia (SP)

Il nostro staff


  • Giovanni Micocci
    Affiliato
Via Monfalcone, 286 19123 La Spezia (SP)
Zona: La Spezia - Rebocco - Pegazzano - Fabiano
Mostra su mappa
Orari: dal lunedì al sabato: mattino 9:00 - 12:30 pomeriggio 15:00 -19:00 sabato 18:00
Affiliato
Studio Monfalcone Srl
Via Monfalcone, 286 19123 La Spezia (SP)

2026 Tecnocasa Franchising S.p.A. - P. IVA 08365160152 - Via Monte Bianco 60/A 20089 Rozzano (MI). Ogni agenzia ha un proprio titolare ed è autonoma. Privacy policy | Policy utilizzo | Cookie policy